運命のリノベーション
物件と出会える場所
物件と出会える場所
[過去取扱物件]
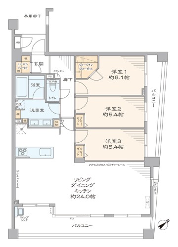
約24帖の広々LDK、東南・北東角部屋
- 所在地 : 神奈川県藤沢市
- 交通 : 小田急江ノ島線『鵠沼海岸』駅徒歩2分
- 間取り : 3LDK+WIC・SIC
- 専有面積 : 86.98 ㎡
- CATV導入済み
- オートロック
- ペット飼育可
- 光ファイバー導入済
(共用部まで) - 宅配ボックス
- 浴室換気乾燥機
- 買物便利
- 駐車場
- 駐輪場
物件概要
リノベーション内容
- 構造鉄筋コンクリート造地上4階建3階部分
- 間取り3LDK+WIC・SIC
- 専有面積86.98㎡(壁芯)
- バルコニー面積19.68 ㎡
- 土地権利所有権
- 用途地域近隣商業地域 ・ 第一種低層住居専用地域
- 駐車場空有(13,000円~15,000円/月)
- ペット飼育可(飼育細則有)
- 事務所使用不可
- フローリング新規貼替
- 給水管・給湯管新規交換(専有部)
- 建具・玄関収納等新規交換
- LIXIL製洗面化粧台新規交換
- TOTO製洗浄便座付トイレ新規交換
- TOTO製追焚機能付ユニットバス新規交換(浴室換気乾燥機付)
- LIXIL製システムキッチン新規交換(食器洗い器付)
- 壁・天井クロス新規貼替
- 給湯器新規交換(追焚式)
- 照明器具新規設置
- エアコン一基新規設置…等










































