運命のリノベーション
物件と出会える場所
物件と出会える場所
[過去取扱物件]
羨望の地ー港区三田ーに佇む、タワーレジデンス
- 所在地 : 東京都港区
- 交通 : JR山手線『田町』駅徒歩6分
都営三田線『三田』駅徒歩2分
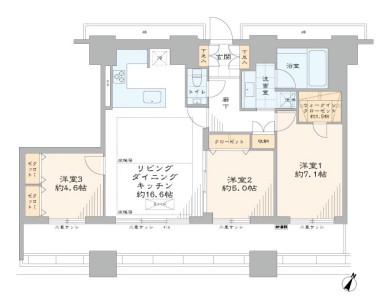
都営浅草線『三田』駅徒歩3分 - 間取り : 3LDK+WIC
- 専有面積 : 80.62 ㎡
- 2駅利用可能
- オートロック
- トイレ新規交換
- ペット飼育可
- 光ファイバー導入済
(共用部まで) - 公園至近
- 宅配ボックス
- 浴室換気乾燥機
- 眺望良好
- 買物便利
- 食器洗い機
- 駅近
- 駐車場
- 駐輪場
物件概要
リノベーション内容
- 構造鉄骨鉄筋コンクリート造地下2階地上36階建26階部分
- 間取り3LDK+WIC
- 専有面積80.62㎡(壁芯)
- バルコニー面積16.90 ㎡
- 土地権利所有権
- 用途地域商業地域
- 駐車場空有(35,000円~42,000円/月)
- ペット飼育可(使用細則有)
- 事務所使用不可
- フローリング新規貼替
- 建具・玄関収納等新規交換
- オリジナル洗面化粧台新規交換
- LIXIL製洗浄便座付トイレ新規交換
- LIXIL製ユニットバス新規交換(浴室換気乾燥機付)
- 壁・天井クロス新規貼替
- 照明器具新規設置
- エアコン一基新規設置
- オリジナル製システムキッチン新規交換(食器洗い機付)…等



