運命のリノベーション
物件と出会える場所
物件と出会える場所
[過去取扱物件]
人気の立地ー文京区音羽一丁目ーアドレス
- 所在地 : 東京都文京区
- 交通 : 東京メトロ有楽町線『護国寺』駅徒歩5分
東京メトロ有楽町線『江戸川橋』駅徒歩7分
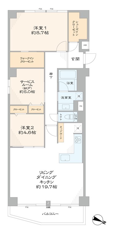
東京メトロ丸ノ内線『茗荷谷』駅徒歩14分 - 間取り : 2SLDK+WIC・SIC
- 専有面積 : 90.37 ㎡
- 2駅利用可能
- TVモニター付インターフォン
- オートロック
- トイレ新規交換
- ペット飼育可
- 光ファイバー導入済
(共用部まで) - 浄水器
- 浴室換気乾燥機
- 角部屋
- 食器洗い機
- 駐輪場
物件概要
リノベーション内容
- 構造鉄骨鉄筋コンクリート造地上14階建6階部分
- 間取り2SLDK+WIC・SIC
- 専有面積90.37㎡(壁芯)
- バルコニー面積7.25 ㎡
- 土地権利所有権
- 用途地域商業地域
- 駐車場無
- ペット飼育可(小型犬・猫、1住戸1匹、規約有)
- 事務所使用不可
- フローリング新規貼替
- 給水管・給湯管新規交換(専有部)
- 建具・玄関収納等新規交換
- LIXIL製洗面化粧台新規交換
- TOTO製洗浄便座付トイレ新規交換
- TOTO製ユニットバス新規交換(浴室換気乾燥機付)
- トクラス製システムキッチン新規交換(食器洗浄乾燥機付)
- 壁・天井クロス新規貼替
- 照明器具新規設置
- エアコン2台マルチ新規設置
- 給湯器新規交換(追焚式)…等











































